This project revitalizes Muiderberg’s historic Watersport Center by enhancing its architectural identity and functionality, while honoring the village’s deep-rooted connection to the water and community life.
Muiderberg is a historic village of about 3,000 residents, located between Amsterdam and ’t Gooi. Its origins trace back to a sandy hill formed during the Ice Age, offering safe ground since the 8th century. In the 19th century, the village transformed from an agricultural community into a popular leisure spot, thanks to improved access via the Gooische Steam Tram. Watersport Center, founded in 1974, WSV Muiderberg has been a cornerstone of the community for 50 years, promoting youth sailing and hosting events like the annual “Slag om het Hooft”.
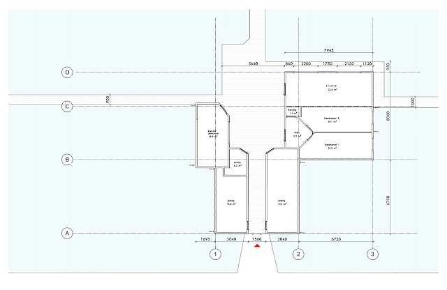
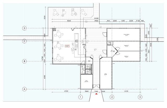
Our design maintains the identity and spatial quality of the location while significantly enhancing the value of the Watersport Center. We introduce a symmetrical form, creating a harmonious façade and a more balanced overall appearance, reminiscent of how it once was, while clearly marking the entrance for visitors. The new addition retains the closed and consistent architectural language of the existing building and its neighbor, while opening up towards the water to create an inviting space for visitors. From the land side, the façades are closed, with a terrace facing north. The space primarily serves watersport users, making it semi-public. The extension will also match the existing structure in terms of materials and architectural style.
Project Partners
Paul Walther
Silya Sarieddine
Jakob Achenrainer


